
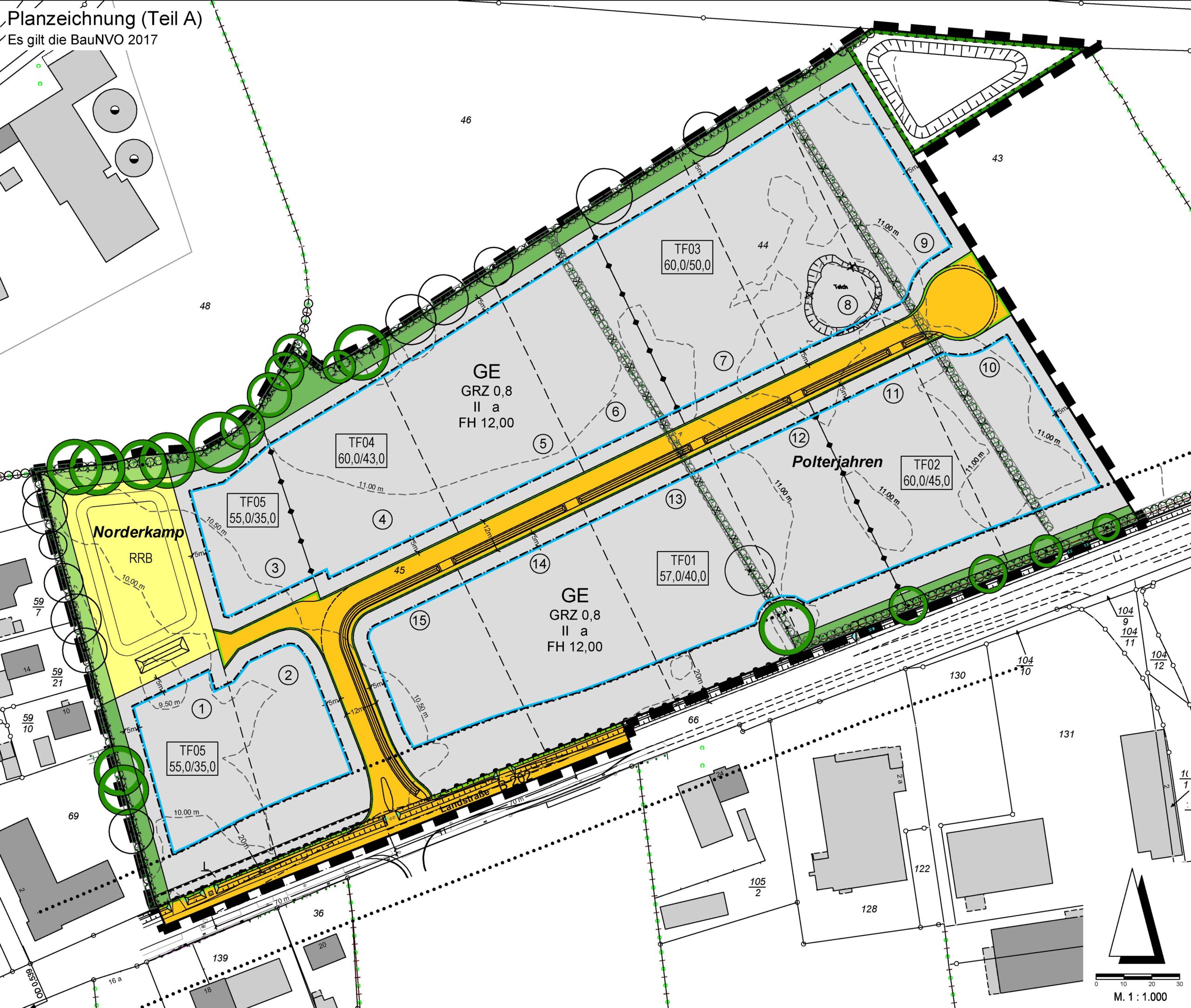
Gewerbegrundstücke in Erfde zu verkaufen
Die Gemeinde Erfde veräußert Grundstücke im Gewerbegebiet „Norderkamp“ an der B202
Der Kaufpreis beträgt 49 € / m² (voll erschlossen). Die Grundstücke sind zwischen 2.400 m² und 4.460 m² groß (andere Größen auf Anfrage). Glasfaser und Fernwärme sind im gesamten Gebiet vorhanden.
Weitere Informationen können Sie auf der Homepage der Gemeinde Erfde einsehen.
Schriftliche Bewerbungen richten Sie bitte an die
Gemeinde Erfde
Bürgermeister Thomas Klömmer
Beekstraße 2
24803 Erfde
Bei Fragen wenden Sie sich gerne an Bürgermeister Thomas Klömmer unter der Mobilnummer 0160 / 58 38 113 oder per E-Mail an thomas.kloemmer@gmx.de.